小林住宅
間取りプラン

厳選された1,500を超える間取りから
ご希望の間取りをお送りします。

間取りを考えることは、
家づくりの第一歩です。
数も種類も豊富な厳選された
1,500を超える間取りプランをご用意。
小林住宅のアイデアを凝縮した間取りは、
さまざまなご要望・こだわりに
お応えします。

小林住宅の間取りプラン請求、
3つのポイント!

  1. Point 01


    すべて設計士が想いを形にした間取り

  2. Point 02


    間口も奥行きも選択できる!

  3. Point 03


    イメージしているものが形になる

まずは、間取りプラン請求フォームにて、
あなたのご希望項目をチェックして、
間取りプランをご請求ください!

小林住宅の外断熱工法なら同じ延床面積でも、有効面積が大きくとれる。

小林住宅の高性能住宅なら、家中の温度差が少なくなるため、間仕切りが不要。
無駄な廊下スペースもいらなくなるため、有効面積が大きくなります。
大きな吹抜けやリビング階段など広々とした開放的な間取りが実現できます。

参考プラン

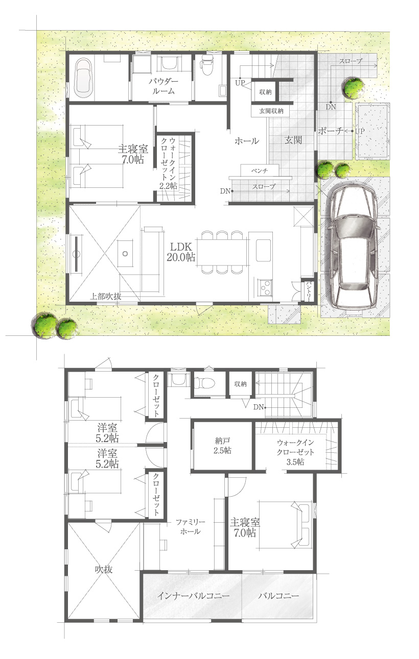
1. 大開放 吹抜けタイプ

当社施工例

開放感と家族のつながりを意識した、大きな吹抜け・リビング階段のあるプラン

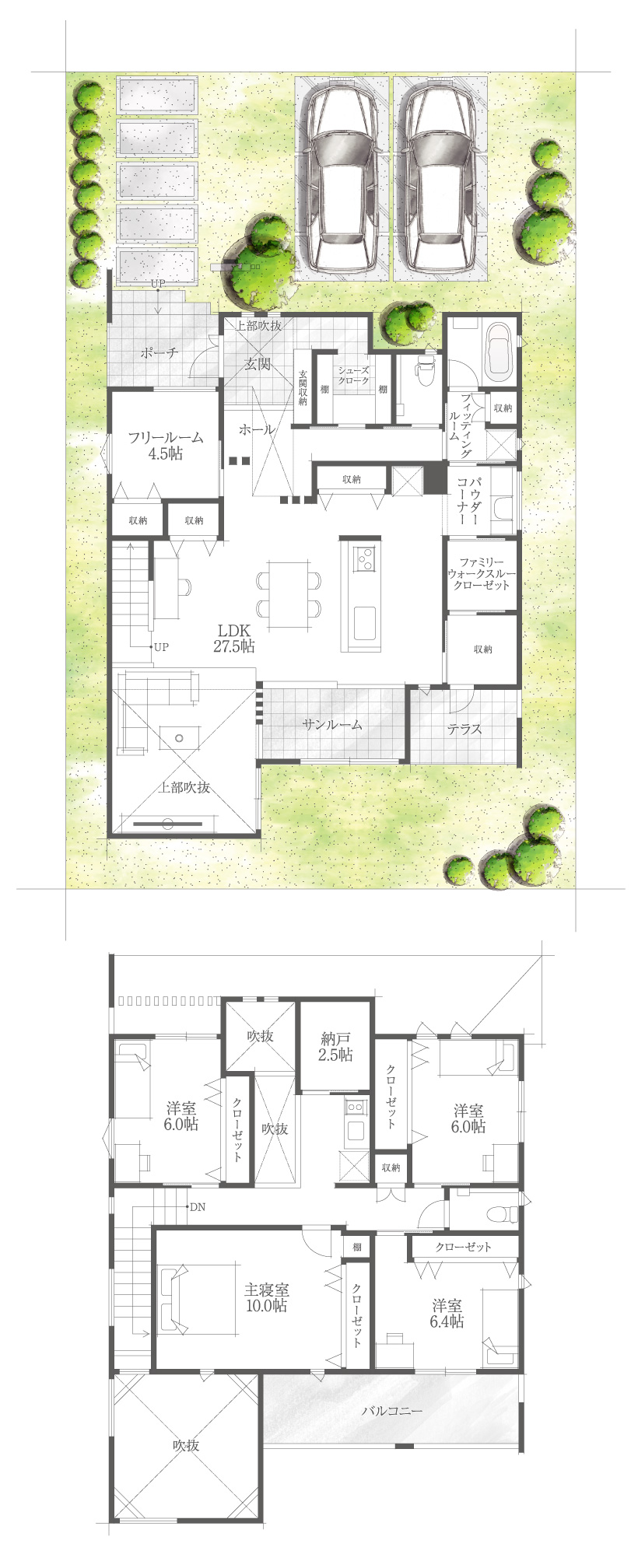
2. 眺望・日当たり重視 二階リビングタイプ

当社施工例

吹抜けがなくても勾配天井で開放的な空間
たっぷりの日差しに包まれる二階リビングプラン

3. ゆとりを愉しむ 50坪以上タイプ

当社施工例

生活の機能面だけでなく、家族のこだわりを盛り込みながら
余白による豊かさを感じるプラン

4. ワンフロアの生活 平屋タイプ

当社施工例

生活動線を集約できて、老後も安心
間仕切りが少なく、より家族の気配を感じられるプラン

5. 密集地でも明るく開放的なリビングを 
三階建てタイプ

当社施工例

限られた敷地を最大限に活用する三階建て
二階リビングに吹抜けを設けて、眺望と採光のとれたプラン

6. それぞれの家族を想う 二世帯タイプ

当社施工例

親世帯の寝室近くに水回りを、
二階には子世帯がくつろげるファミリーホールのあるプラン

設計士との面談の様子

ご来場いただいた段階で
設計士がヒアリング!

お客様のご要望と、動線などの
暮らしやすさ・
デザイン性とのバランスを
考えた、
最適なプランを設計士よりご提案

お近くの住宅展示場はこちら

お電話でのお問い合わせ

お電話でのお問い合わせの際は、
以下の電話番号へおかけください。
番号のお間違いにご注意ください。

代表
06-6766-4830
9:00~18:00
ABCハウジング
ウェルビーみのお第1モデルハウス
072-734-7015
10:00~18:00
ABCハウジング
ウェルビーみのお第2モデルハウス
072-734-6701
10:00~18:00
なんば住宅博
06-6634-1332
10:00~18:00
ABCハウジング 中百舌鳥住宅公園
072-240-1332
10:00~18:00
ABCハウジング
伊丹・昆陽の里住宅公園
072-744-0650
10:00~18:00
総合住宅展示場「京都・四条」
075-950-2431
10:00~18:00