シンプルモダンな外観に、
吹抜けが開放的なリビングと
ワークスペースを配置。
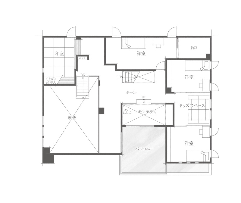
1階床面積:132.34㎡
2階床面積:99.43㎡
3階床面積(ロフト含む):45.13㎡
延床面積:276.90㎡
1階床面積:132.34㎡
2階床面積:99.43㎡
3階床面積(ロフト含む):45.13㎡
延床面積:276.90㎡
1階床面積:132.34㎡
2階床面積:99.43㎡
3階床面積(ロフト含む):45.13㎡
延床面積:276.90㎡
01
吹抜けがもたらす
圧倒的な開放感

間仕切りの少ない大空間、開放的な吹抜け。
憧れの空間が高気密・高断熱だから快適。
02
エアコン1台で
広い空間が快適に

展示場全体がエアコン1台で驚くほど快適。各エリアに設置された温度計で温度差をご確認ください。
03
暮らしを彩る
洗練されたデザイン

素材や造作にこだわった美しい空間設計。暮らす人をやさしく包み込む、洗練された住まい。
04
夏でも涼しい
快適ロフト空間

暑さが気になるはずのロフトも、小林住宅では屋根を断熱することで快適に活用できます。
05
外からの騒音を遮断し、
室内の音も漏れにくい高い遮音性

騒音を遮断し眠りに集中できる空間を作るだけでなく、子供の声など内部の音も漏れにくくします。
06
性能が見える
プロジェクションマッピング

目に見えにくい住宅性能を、プロジェクションマッピングで楽しく理解。お子さまにも人気です。
お待ちいただくことなくご案内できますので、お子様連れの方も時間が読めて安心。
事前に知りたい事項やご要望がございましたら、来場予約フォームにご記入ください。
ご要望に応じて、スムーズにお打ち合わせできるよう、営業スタッフだけでなく設計士もお待ちしております。
・お車でお越しの場合
阪神高速道路「難波」出口すぐ
日本橋筋国道26号線四つ橋筋よりすぐ
・電車でお越しの場合
南海本線「難波」駅より徒歩約5分
近鉄難波線「近鉄難波」駅より徒歩約5分
市営地下鉄各線「難波」駅より徒歩約10分