シンプルで洗練された空間に
職人技が生む伝統工芸品の数々を鏤めて
〒615-0066
京都府京都市右京区西院四条畑町29-1 7号地
営業時間:10:00~18:00
Tel:075-950-2431
Projection Mapping
シンプルで洗練された空間に
京都らしい上品で華やかな要素を取り入れた
落ち着きとやすらぎに満ちた住まい。
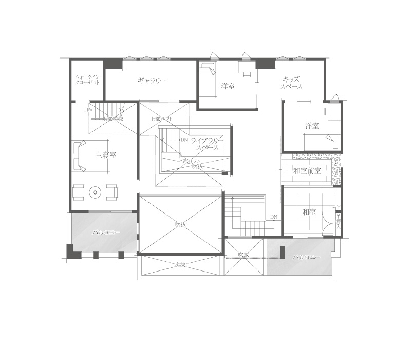
1階床面積:142.64㎡
2階床面積:117.86㎡
延床面積:260.50㎡
ロフト:14.90㎡
1階床面積:142.64㎡
2階床面積:117.86㎡
延床面積:260.50㎡
ロフト:14.90㎡
1階床面積:142.64㎡
2階床面積:117.86㎡
延床面積:260.50㎡
ロフト:14.90㎡
01
吹抜けがもたらす
圧倒的な開放感

間仕切りの少ない大空間、開放的な吹抜け。
憧れの空間が高気密・高断熱だから快適。
02
全環空調で
広い空間が快適に

展示場全体が全環空調で驚くほど快適。各エリアに設置された温度計で温度差をご確認ください。
03
暮らしを彩る
洗練されたデザイン

素材や造作にこだわった美しい空間設計。暮らす人をやさしく包み込む、洗練された住まい。
04
夏でも涼しい
快適ロフト空間

暑さが気になるはずのロフトも、小林住宅では屋根を断熱することで快適に活用できます。
05
外からの騒音を遮断し、
室内の音も漏れにくい高い遮音性

騒音を遮断し眠りに集中できる空間を作るだけでなく、子供の声など内部の音も漏れにくくします。
06
性能が見える
プロジェクションマッピング

目に見えにくい住宅性能を、プロジェクションマッピングで楽しく理解。お子さまにも人気です。
お待ちいただくことなくご案内できますので、お子様連れの方も時間が読めて安心。
事前に知りたい事項やご要望がございましたら、来場予約フォームにご記入ください。
ご要望に応じて、スムーズにお打ち合わせできるよう、営業スタッフだけでなく設計士もお待ちしております。
〒615-0066
京都府京都市右京区西院四条畑町29-1 7号地
営業時間:10:00~18:00
定休日:水曜日
Tel:075-950-2431
・お車でお越しの場合
西大路通「西大路四条」交差点を西へ1.1km
葛野大路通「葛野大路四条」交差点を東へ500m
・電車でお越しの場合
阪急京都線「西院」駅西改札口から西へ950m
京都市バス「四条中学前」下車
京都嵐山本線・京福電気鉄道「西院」駅から西へ1100m